Quinto piano
Quarto piano
Terzo piano
Secondo piano
Primo piano
Piano terra
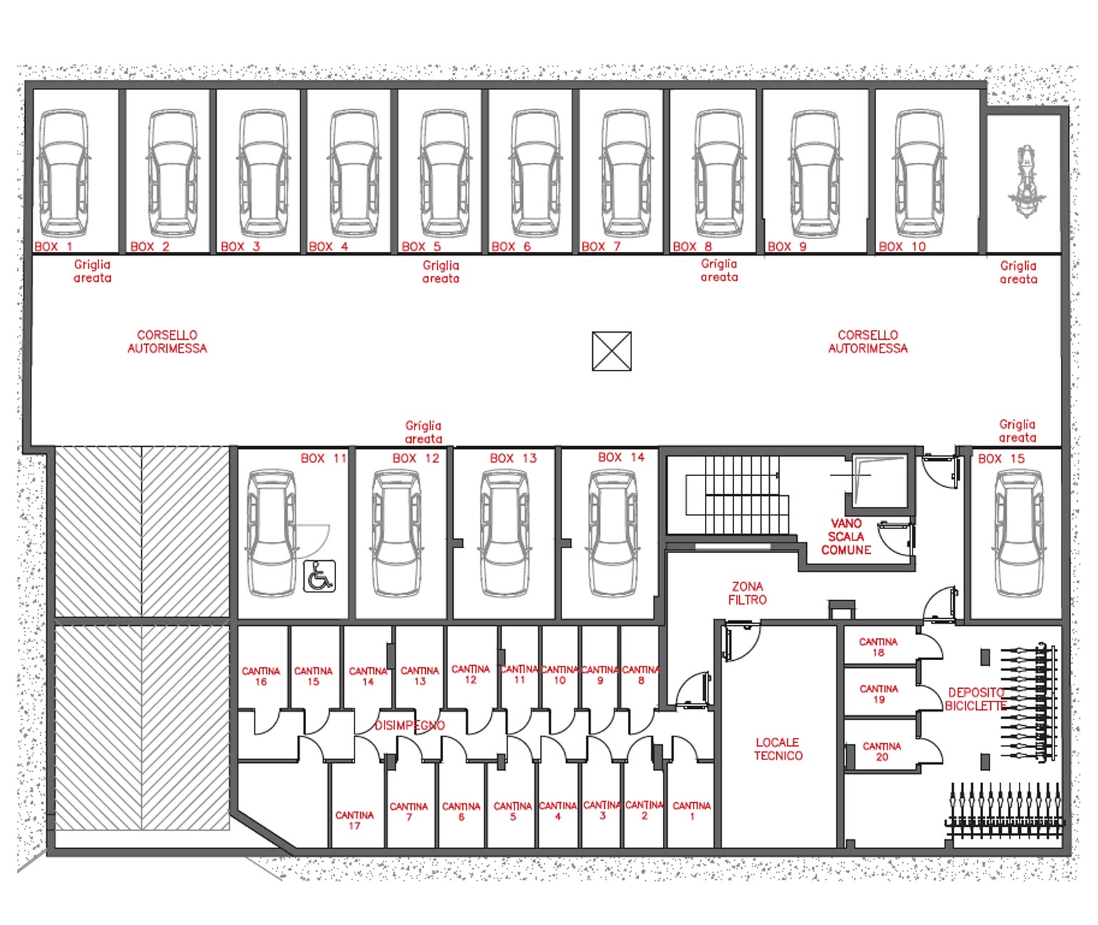
Piano interrato -1